Строительство домов по канадской технологии
Строительство домов по канадской технологии все больше с каждым днем доступнее в Казахстане с компанией HotWell.KZ. Мы строим дома в Казахстане с 2012 года. Канадская технология появилась в Канаде, поэтому и называется канадской. Первые дома в Канаде были построены более 140 лет назад. Данная технология относительно молодая ни за это время успела распространится и стать популярной во многих странах нашего мира. Наиболее широко распространилось строительство домов по канадской технологии в северных регионах, так как дома по канадской технологии обладают хорошими теплоизоляционными свойствами. Всего 17 см СИП панели заменяет к примеру 2,5 метра по теплостойкости бетонной стены. Из кирпича 1.5 метра стены равны 17см по теплостойкости стены из СИП панелей. Помимо хороших теплоизоляционных свойств строительство по канадской технологии считается сейсиобезопастной, что наиболее актуально для сейсмоопасных районов. Более подровную информацию о строительстве домов по канадской технологии вы найдете в новостном блоке где мы пишем различные статьи на эту тему.
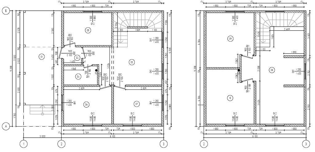
Проект "Н-149"
Технические характеристики
Площадь:
149 м2
Габариты, м:
13.7 х 10.4
Этажность:
2 этажа
Комнат:
4 шт.
Высота этажей: 2.5 м, 2.5 м
Поделиться проектом ⇩
Ниже то, что входит в стоимость ⇩
КОМПЛЕКТАЦИЯ
СТАНДАРТНАЯ
ГАРАНТИЯ
Гарантия
1 год
ПРОЕКТИРОВАНИЕ
Архитектурный проект
Типовой
Рабочее проектирование
3D-визуализация дома
ФУНДАМЕНТ
Фундамент свойно-ленточный, железобетонный. Наполнение ПГС, поверх стяжка 80 мм.
ОБВЯЗКА ФУНДАМЕНТА
Брус обвязки фундамента
40х150 мм
СТЕНЫ
Внешние стены из СИП панелей пр-ва Hotwell 168 мм (OSB-3 Толщина 9 мм, Пенополистирол ПСБ-С-20Ф)
Не несущие перегородки - металический профиль 50х75 мм, обшитый гипсокортоном.
МЕЖЭТАЖНОЕ ПЕРЕКРЫТИЕ
Межэтажное перекрытие - балочное (40x190 мм), с устройством пола из фанеры 15 мм
Утепление пенополистиролом 150 мм по периметру межэтажного перекрытия (для двухэтажных домов)
ЧЕРДАЧНОЕ ПЕРЕКРЫТИЕ И КРЫША
Чердачное перекрытие из деревянных балок
Стропильная система крыши
Утепление чердачного перекрытия
Пенополистирол ПСБ-С-20Ф 150 мм
КРОВЛЯ И ОБРЕШЕТКА
Металлочерепица
Утепление чердачного перекрытия или крыши* Пенополистирол ПСБ-С-20Ф) слоем 150 мм
ДОСТАВКА И МОНТАЖ
Монтаж штатными мастерами Хотвелл
Фотоотчеты со стройки
Бесплатно
Сроки сборки**
25 дней
Доставка комплекта дома и всех необходимых материалов
Организация проживания бригады
Стоимость Фундамента
--
Стоимость Домокомплекта
--
Стоимость Сборки ДК.
--
ИТОГО СТОИМОСТЬ
Уточнять
● *Утепление стропильной системы крыши производятся в случае наличия мансардного этажа
● **Срок сборки ориентировочный и зависит от погодных условий
● *** Стоимость указана без учёта террас
Строительство домов из СИП панелей в Алматы, и во всех городах Казахстана. Продажа СИП панелей.
ссылки
полезные ссылки
- Строительство домов
- Строительство коттеджей
- Строительство зданий
- Дома из кирпича
- Дома из ЛСТК
- Дом из арболита
- Дома из полистиролбетона
- Дома из пенобетона
- Дома из Керамич. блоков
- Частное строительство
- Барнхаус дома
- Сборные дома
- Норвежские дома
- Быстровозводимые дома
- Дома из панелей
- СИП панели отзывы
- СИП домокомплекты
- Строительная компания
полезные ссылки
- Проекты домов
- Проекты 1-х домов
- Проекты 2-х домов
- Проекты коттеджей
- Проектирование домов
- Разрешение на строит.
- Калькулятор строительства
- Продажа СИП в Шымк.
- Постройка дома в Шымк.
- ТОП 100 вопросов
- Дома из двойного бруса
- Газоблочные дома
- Дома из термобруса
- Дом из керамзитблоков
- Строю дом
- Модульные дома в России
- Прайс лист на СИП панели
- Откатные ворота
полезные ссылки
- Дом недорого
- Сэндвич панели
- Контакты в Шымкенте
- Кредит на строительство дома
- Дома из клееного бруса
- Дома из рубленного бревна
- Дома из каркас-камышита
- Дома из финблоков
- Продажа ОСБ
- Trade In авто
- Trade In недвижимость
- Studoz.com Онлайн курсы
- SipDelux.kz
- Postroimdom.kz
- SipDelux.com (Россия)
- HotWell.KZ/RU (Россия)
- Структура Сайта
- Видео HotWell.KZ

