Проект дома «Н-129» 129 кв.м2 Наталья
10,420,000 ₸
| 🏠 Площадь: |
129 кв.м2 |
|---|---|
| Этажность |
1 этаж |
| Габариты |
12х9 |
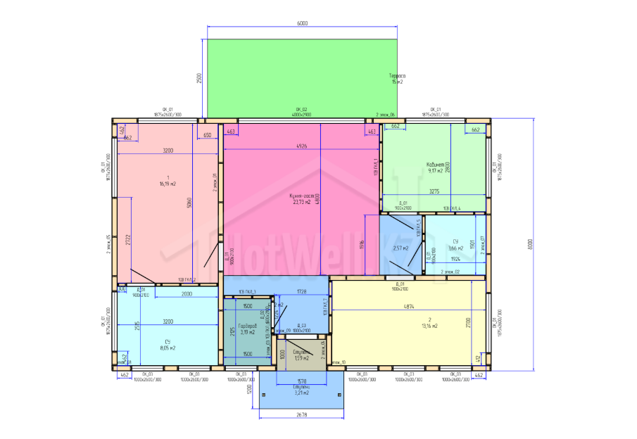
Проект дома «Н-129» — модульный дом 129 м²
Проект «Н-129», разработанный для заказчика Натальи, — это современный модульный дом площадью 129 м², который отлично подойдет для комфортного проживания семьи. Модульная технология строительства позволяет быстро реализовать проект и эффективно использовать пространство.
Дом выполнен в одном этаже, что делает его удобным и практичным в эксплуатации. Все основные помещения располагаются на одном уровне, что обеспечивает комфортное передвижение внутри дома.
Высота стен 3,2 метра делает помещения более просторными и светлыми, создавая ощущение открытого пространства.
Проект предусматривает четырёхскатную крышу, которая отличается надежностью, устойчивостью к погодным условиям и долговечностью конструкции.
