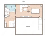
Проект дома «К-215» 215 кв.м2
| Площадь | 215 м2 | 
|---|---|
| Этажность | 2 этажа | 
| Габариты | 12 x 10 м | 
| Количество спален | 4 шт. | 
	
			
		
			
				Артикул:			
			
				Проект дома «Лужки 4»-1-6-9-10-7-10-4-4-2-1-1-3-5-12-1-5-7-2-1-7-7-3-3-5-4-9-1-1-1-1-1-1-1-1-1-2-1-1-1			
		
	
			Категории: 2 этажные, от 200 м2 300 м2, Цены	
				
	
	
			
								
													
								Описание							
											
					
				Двухэтажный дом 12 на 10 метров, общей площадью 215 м2, из СИП панелей, со вторым светом и спальней на первом этаже.
													
								Отзывы (0)							
											
					
				
		Будьте первым, кто оставил отзыв на “Проект дома «К-215» 215 кв.м2”	
				 
	 
	 +7(747)743-43-43
 +7(747)743-43-43 
				 
				
 
				 
				 
								 
								 
								 
		 
			 
		 
			 
		 
			 
		 
			 
		 
			 
		 
			 
		 
			 
		 
			 
											 
											 
											
Отзывы
Отзывов пока нет.