Проект дома «З-107» 107 кв.м2 Захар
6,984,900 ₸
| 🏠 Площадь: |
107 кв.м2 |
|---|---|
| 🏗 Этажность: |
2 этажа |
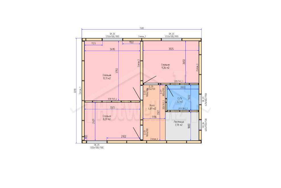
| Габариты |
7.5х8 |
Проект дома «З-107» — двухэтажный дом 107 м²
Проект «З-107», разработанный для заказчика Захара, — это удобный двухэтажный дом площадью 107 м², который хорошо подойдет для комфортного проживания семьи. Планировка дома позволяет рационально распределить жилые помещения и создать удобное пространство для повседневной жизни.
Высота стен на первом этаже составляет 2,8 метра, благодаря чему помещения выглядят более светлыми и просторными. На втором этаже высота стен — 2,5 метра, что делает комнаты уютными и комфортными для отдыха.
Дом выполнен в двух этажах, что позволяет разделить пространство на общие и личные зоны. На первом этаже можно разместить кухню, гостиную и хозяйственные помещения, а на втором — спальни и жилые комнаты.
Проект предусматривает двускатную крышу, которая отличается надежностью, простотой конструкции и долговечностью. Такая крыша хорошо отводит осадки и подходит для различных климатических условий.
Проект «З-107» сочетает функциональность, удобную планировку и современный внешний вид, благодаря чему станет хорошим вариантом для строительства частного дома.
