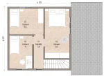
Проект дома «С-115» 115 кв.м2
12,762,332 ₸
| Площадь |
115 м2 |
|---|---|
| Этажность |
1.5 этажа |
| Габариты |
13 x 8 м |
| Количество спален |
1 шт. |
Артикул:
Проект дома «Семхоз 2»
Категории: 2 этажные, Барнхаус проекты, От 150 до 200 м2
Описание
Дом с мансардой 13 на 8 метров, общей площадью 115 м2, из СИП панелей, с сауной, бойлерной и террасой.
Отзывы (0)
Будьте первым, кто оставил отзыв на “Проект дома «С-115» 115 кв.м2”

Отзывы
Отзывов пока нет.