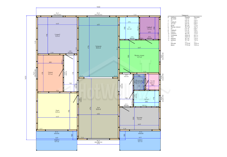
Проект дома «Н-196» 196 кв.м2
18,117,084 ₸
| 🏠 Площадь: |
196 кв.м2 |
|---|---|
| Этажность |
1 этаж |
| Габариты |
14х15 |
Проект дома «Н-196» — одноэтажный дом 196 м²
Проект «Н-196» — это просторный одноэтажный дом площадью 196 м², который отлично подойдет для комфортного проживания семьи. Продуманная планировка позволяет удобно разместить жилые комнаты, кухню-гостиную и дополнительные помещения для отдыха.
Высота стен 3 метра делает помещения более светлыми и просторными, создавая ощущение большого и открытого пространства внутри дома.
Дом выполнен в одном этаже, что делает его удобным и практичным для повседневной жизни. Все помещения расположены на одном уровне, что упрощает использование дома и делает его более комфортным.
Проект предусматривает четырёхскатную крышу, которая отличается надежностью и устойчивостью к погодным условиям. Такая конструкция хорошо отводит осадки и придает дому аккуратный и гармоничный внешний вид.
Проект «Н-196» сочетает простор, удобную планировку и современную архитектуру, благодаря чему станет отличным вариантом для строительства частного дома.
