Проект дома «М-210» 210 кв.м2
| Площадь |
210 м2 |
|---|---|
| Этажность |
2 этажа |
| Габариты |
14 x 9 м |
| Количество спален |
6 шт. |
Артикул:
Проект дома «Лужки 4»-1-6-9-10-7-10-4-4-2-1-1-3-5-12-1-5-7-2-1-7-7-3-3-5-4-9-1-1-1-1-1-1-1-1-1-2-1-1-1
Категории: 2 этажные, от 200 м2 300 м2, Цены
Описание
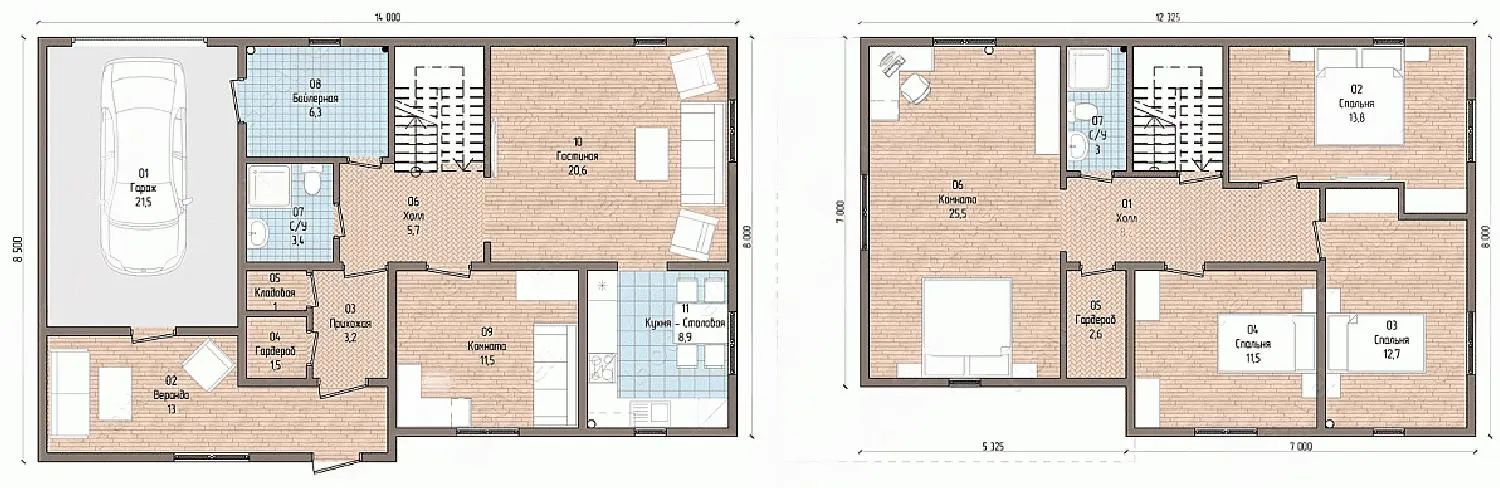
Двухэтажный дом 14 на 9 метров, общей площадью 210 м2, из СИП панелей, с бойлерной, гаражом, террасой и спальней на первом этаже.
Отзывы (0)
Будьте первым, кто оставил отзыв на “Проект дома «М-210» 210 кв.м2”

Отзывы
Отзывов пока нет.