Проект дома «М-162» 162 кв.м2
12,776,000 ₸
| Площадь |
162 кв.м2 |
|---|---|
| 🏗 Этажность: |
2 этажа |
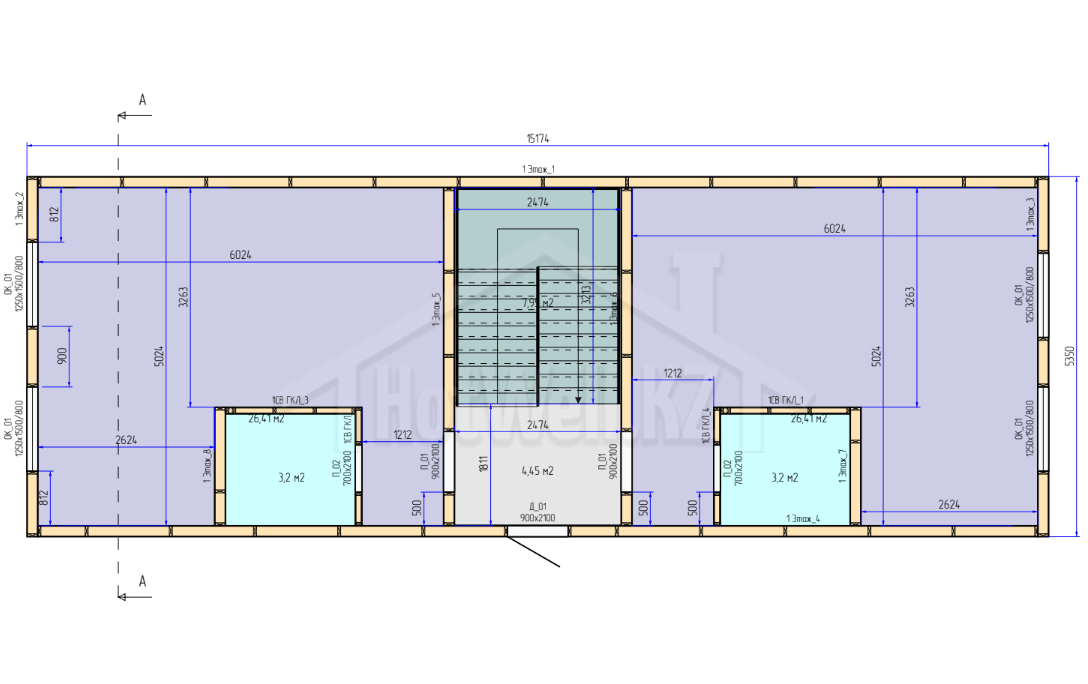
| Габариты |
15х5 |
Проект дома «М-162» — двухэтажный дом 162 м²
Проект «М-162» — современный двухэтажный дом общей площадью 162 м², который отлично подойдет для комфортного проживания семьи. Планировка дома позволяет удобно разделить пространство на жилую и хозяйственную зоны, обеспечивая удобство и функциональность каждого помещения.
Высота стен 2,5 метра делает комнаты уютными и комфортными для повседневной жизни. Такой формат позволяет эффективно использовать внутреннее пространство дома и снизить затраты на отопление.
Дом имеет два этажа, благодаря чему можно грамотно разделить зоны — на первом этаже разместить кухню, гостиную и общие помещения, а на втором этаже расположить спальни и личные комнаты.
Особенностью проекта является односкатная крыша, которая придает дому современный архитектурный стиль. Такая крыша также практична, проста в конструкции и обеспечивает хорошее отведение осадков.
Проект «М-162» сочетает в себе современный внешний вид, функциональную планировку и комфортное пространство для жизни, что делает его отличным вариантом для строительства собственного дома.
