Проект дома «Ф-185» 185 кв.м2
14,900,000 ₸
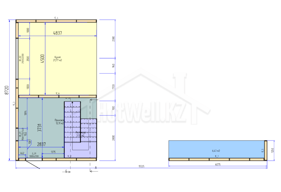
| 🏠 Площадь: |
185 кв.м2 |
|---|---|
| 🏗 Этажность: |
2 этажа |
| Габариты |
15х9 |
Проект дома «Ф-185» — двухэтажный дом 185 м²
Проект «Ф-185» — это просторный и функциональный двухэтажный дом площадью 185 м², который отлично подойдет для комфортного проживания семьи. Дом отличается удобной планировкой и продуманным распределением помещений.
Высота стен 2,6 метра обеспечивает комфортную высоту потолков и позволяет эффективно сохранять тепло внутри дома. Благодаря этому помещения остаются уютными и удобными для повседневной жизни.
Дом состоит из двух этажей, что позволяет грамотно разделить пространство. На первом этаже обычно располагаются кухня, гостиная и общие зоны, а на втором — спальни и личные комнаты.
Проект предусматривает четырёхскатную крышу, которая отличается надежностью, устойчивостью к ветровым нагрузкам и долговечностью. Такая конструкция крыши хорошо защищает дом от осадков и придает зданию аккуратный классический внешний вид.
Проект «Ф-185» сочетает простор, удобство и практичность, благодаря чему станет отличным вариантом для строительства современного семейного дома.
