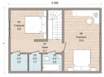
Проект дома «Б-102» 102 кв.м2
| Площадь |
102 м2 |
|---|---|
| Этажность |
1.5 этажа |
| Габариты |
9 x 6 м |
| Количество спален |
3 шт. |
Артикул:
Проект дома «Лужки 4»-1-6-9-5
Категории: 2 этажные, от 100 до 150 м2, Цены
Описание
Дом с мансардой 9 на 6 метров, общей площадью 102 м2, из СИП панелей, со спальней на первом этаже.
Отзывы (0)
Будьте первым, кто оставил отзыв на “Проект дома «Б-102» 102 кв.м2”

Отзывы
Отзывов пока нет.