Проект дома «С-159»
12,444,771 ₸
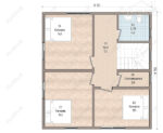
| Площадь |
159 м2 |
|---|---|
| Этажность |
1.5 этажа |
| Габариты |
11 x 9 м |
| Количество спален |
3 шт. |
0
Сейчас этот товар просматривают
Артикул:
Проект дома «Сосенское»
Категории: 2 этажные, От 150 до 200 м2
Описание
Дом с мансардой 11 на 9 метров, общей площадью 159 м2, из СИП панелей, с бойлерной и террасой.
Похожие товары
Проект дома «А-100» 100 кв.м
8,150,000 ₸











