


Проект дома «М-105» 98 кв.м
10,465,969 ₸
Строительство домов алматинская область
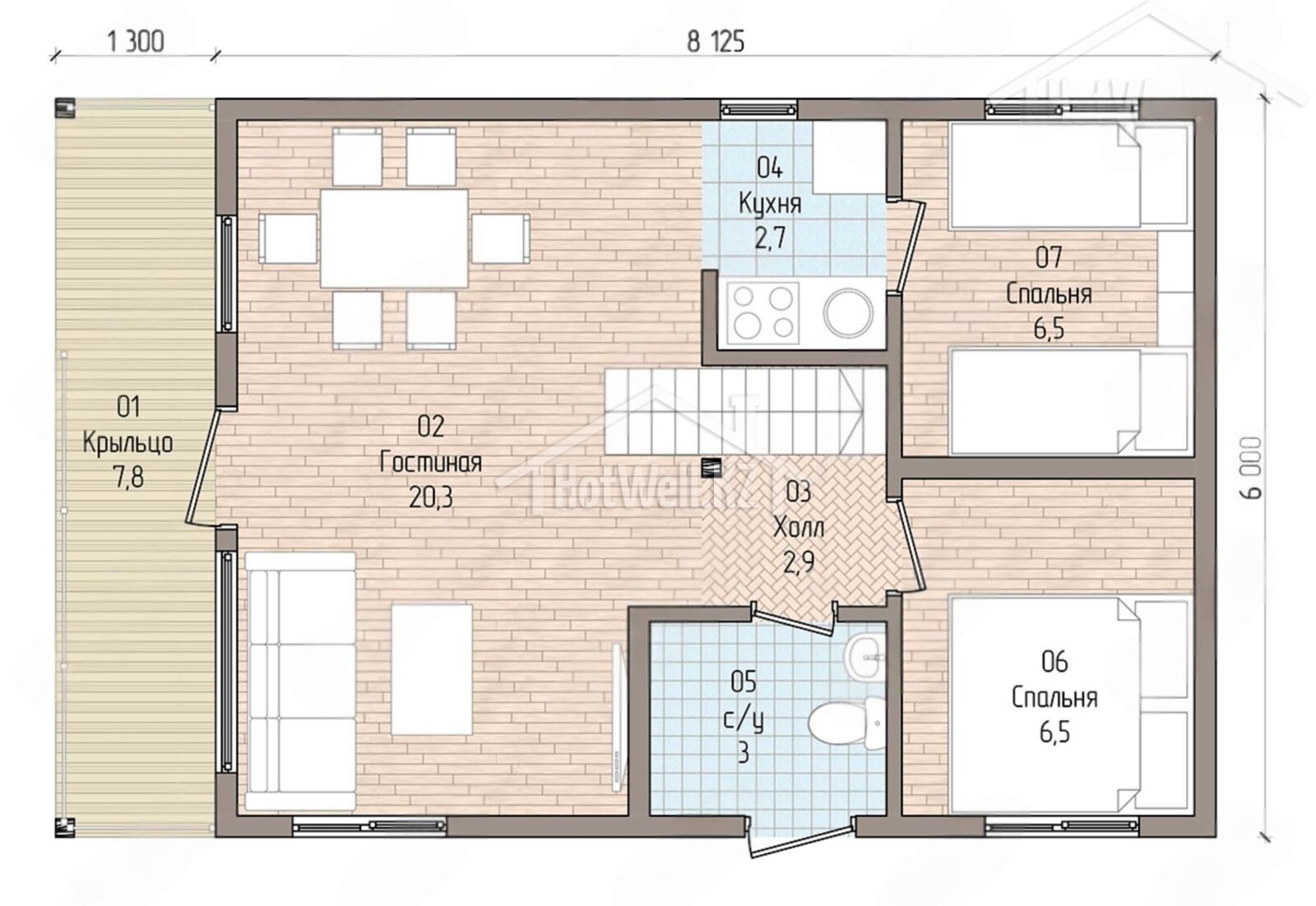
| Площадь: |
98 кв.м. |
|---|---|
| Габариты, м: |
8.1 х 6 |
| Этажность: |
2 этажа. |
| Высота этажа: |
2,5 м. 2,5 м. |
| Площадь дома: |
98 м2 |
0
Сейчас этот товар просматривают
Артикул:
М-105
Категории: 2 этажные, от 50 до 100 кв.м, Проекты, Цены
Описание
Строительство домов алматинская область. Проект 1-этажного дома из SIP-панелей
Похожие товары
Проект дома «Ц-56» 56 кв.м
6,949,800 ₸
Проект дома «А-100» 100 кв.м
8,965,000 ₸
Проект дома «Б-113» 113 кв.м
9,768,000 ₸
Проект дома «М-107» 107 кв.м
9,799,625 ₸
Данный проект дома основан на основе популярного проекта А-100, разница в том что у данного проекта вынесено за пределы дома тех помещение с тамбуром. Проект имеет большую гостинную на первом этаже 22 м2, отдельную кухню. Второй этаж имеет три спальни и сан узел. Тип крыши двускатная. Очень хороший и популярный проект.








