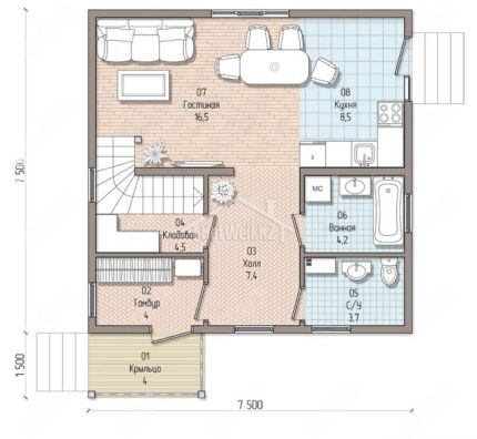
Проект дома «П-170»
12,510,810 ₸
| Площадь |
170 м2 |
|---|---|
| Этажность |
1.5 этажа |
| Габариты |
10 x 10 м |
| Количество спален |
3 шт. |
0
Сейчас этот товар просматривают
Артикул:
Проект дома «Пушкин 2»
Категории: 2 этажные, От 150 до 200 м2
Описание
Дом с мансардой 10 на 10 метров, общей площадью 170 м2, из СИП панелей, с бойлерной.
Похожие товары
Проект дома «М-107» 107 кв.м
8,908,750 ₸
Данный проект дома основан на основе популярного проекта А-100, разница в том что у данного проекта вынесено за пределы дома тех помещение с тамбуром. Проект имеет большую гостинную на первом этаже 22 м2, отдельную кухню. Второй этаж имеет три спальни и сан узел. Тип крыши двускатная. Очень хороший и популярный проект.











