Проект дома «О-193»
16,616,509 ₸
| Площадь |
193 м2 |
|---|---|
| Этажность |
1.5 этажа |
| Габариты |
11 x 9 м |
| Количество спален |
4 шт. |
0
Сейчас этот товар просматривают
Артикул:
Проект дома «Одинцово»
Категории: 2 этажные, От 150 до 200 м2
Описание
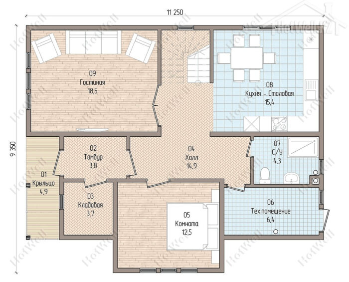
Дом с мансардой 11 на 9 метров, общей площадью 193 м2, из СИП панелей, с бойлерной, балконом, эркером и спальней на первом этаже.
Похожие товары
Проект дома «Б-113» 113 кв.м
9,768,000 ₸
Проект дома «Б-157» 157 кв.м
13,846,568 ₸
Проект дома «Б-286» 286 кв.м
18,836,990 ₸











