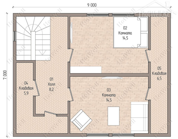
Проект гаража «В-126» 126 кв.м
0 ₸
| Площадь |
126 м2 |
|---|---|
| Этажность |
1.5 этажа |
| Габариты |
9 x 7 м |
0
Сейчас этот товар просматривают
Артикул:
Проект гаража «Веретенки»
Категория: Гаражи
Описание
Гараж с мансардой 9 на 7 метров, общей площадью 126 м2, из СИП панелей.











