Проект дома «Ю-106» — одноэтажный дом 106 м² с односкатной крышей
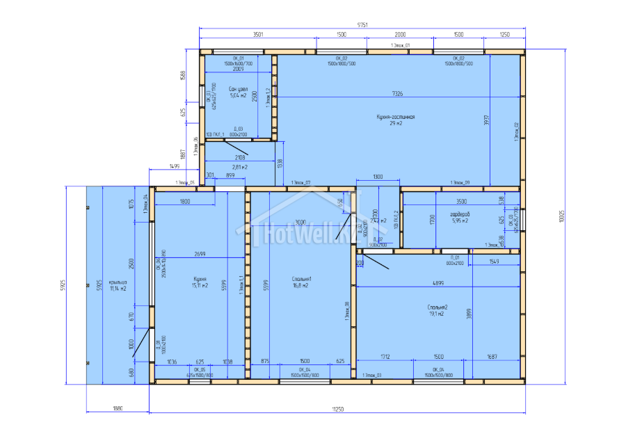
Проект «Ю-106», выполненный для заказчика Юрия, — это современный одноэтажный дом общей площадью 106 м², рассчитанный на комфортное проживание семьи.
Высота стен 2,8 метра делает помещения более светлыми и визуально просторными, благодаря чему внутри дома создается ощущение открытого пространства.
Дом имеет один этаж, что делает планировку удобной и практичной для ежедневной жизни. Все основные помещения располагаются на одном уровне.
Архитектурной особенностью проекта является односкатная крыша, которая отличается современным стилем, надежностью и простотой в строительстве.
Проект «Ю-106» сочетает удобную планировку, функциональность и современный внешний вид.








