Проект дома «В-164»
12,724,153 ₸
| Площадь |
164 м2 |
|---|---|
| Этажность |
2.5 и более |
| Габариты |
10 x 7 м |
| Количество спален |
2 шт. |
0
Сейчас этот товар просматривают
Артикул:
Проект дома «Видное»
Категории: 2 этажные, От 150 до 200 м2
Описание
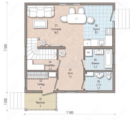
Трехэтажный дом 10 на 7 метров, общей площадью 164 м2, из СИП панелей, с бойлерной, эркером и спальней на первом этаже.
Похожие товары
Проект дома «А-119» 119 кв.м
9,674,610 ₸
Проект дома «Б-205» 205 кв.м
16,308,570 ₸












