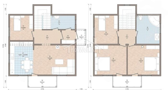
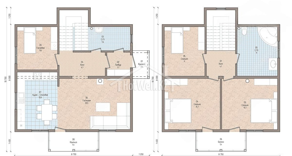
Проект дома «Щ-160»
12,960,640 ₸
| Площадь |
160 м2 |
|---|---|
| Этажность |
2 этажа |
| Габариты |
11 x 10 м |
| Количество спален |
4 шт. |
0
Сейчас этот товар просматривают
Артикул:
Проект дома «Щелково 1»
Категории: 2 этажные, От 150 до 200 м2
Описание
Двухэтажный дом 11 на 10 метров, общей площадью 160 м2, из СИП панелей, с балконом и спальней на первом этаже.
Похожие товары
Проект дома «А-100» 100 кв.м
9,285,760 ₸
Проект дома «А-118» 118 кв.м
10,957,197 ₸
Проект дома «Б-205» 205 кв.м
16,308,570 ₸









