Проект дома «С-168»
13,599,986 ₸
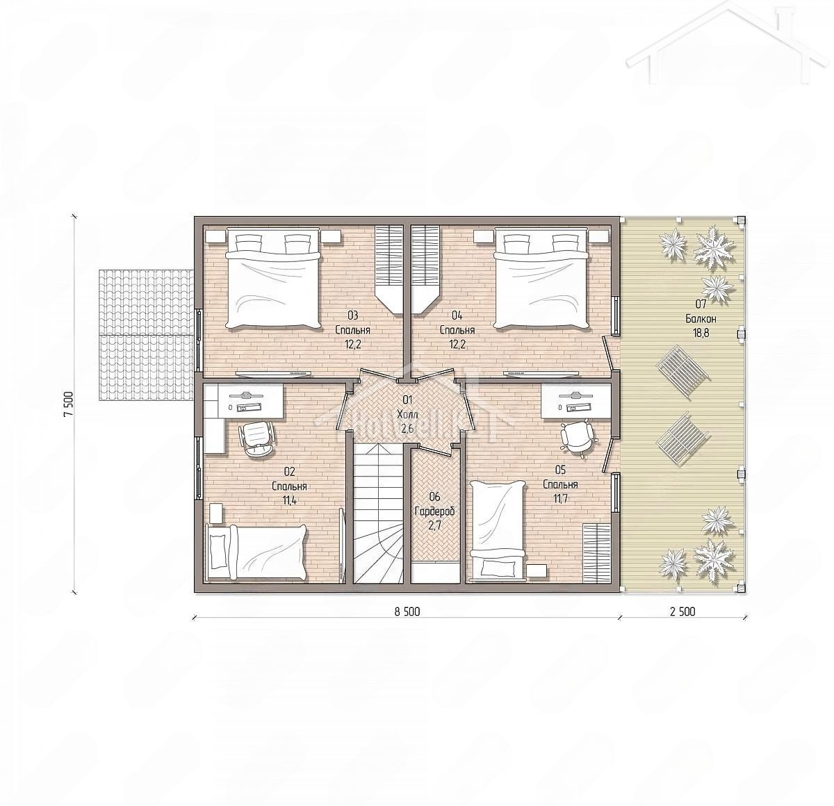
| Площадь |
168 м2 |
|---|---|
| Этажность |
1.5 этажа |
| Габариты |
12 x 8 м |
| Количество спален |
5 шт. |
0
Сейчас этот товар просматривают
Артикул:
Проект дома «Съяново-2»
Категории: 2 этажные, От 150 до 200 м2
Описание
Дом с мансардой 12 на 8 метров, общей площадью 168 м2, из СИП панелей, с бойлерной, террасой, балконом и спальней на первом этаже.
Похожие товары
Проект дома «М-107» 107 кв.м
9,799,625 ₸
Данный проект дома основан на основе популярного проекта А-100, разница в том что у данного проекта вынесено за пределы дома тех помещение с тамбуром. Проект имеет большую гостинную на первом этаже 22 м2, отдельную кухню. Второй этаж имеет три спальни и сан узел. Тип крыши двускатная. Очень хороший и популярный проект.
Проект дома «Б-157» 157 кв.м
13,846,568 ₸










