Проект дома «С-150»
12,914,385 ₸
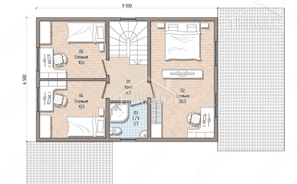
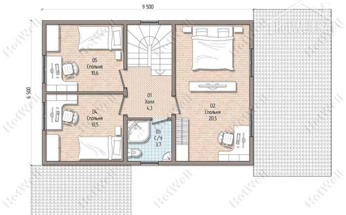
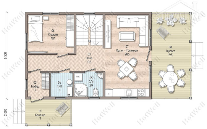
| Площадь |
150 м2 |
|---|---|
| Этажность |
1.5 этажа |
| Габариты |
9 x 13 м |
| Количество спален |
4 шт. |
0
Сейчас этот товар просматривают
Артикул:
Проект дома «Судниково»
Категории: 2 этажные, От 150 до 200 м2
Описание
Дом с мансардой 9 на 13 метров, общей площадью 150 м2, из СИП панелей, с бойлерной, террасой и спальней на первом этаже.
Похожие товары
Проект дома «Б-157» 157 кв.м
13,846,568 ₸
Проект дома «Б-286» 286 кв.м
18,836,990 ₸










