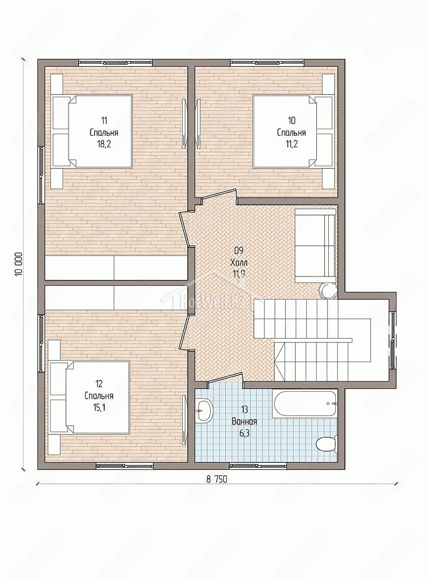
Проект дома «П-163»
13,203,652 ₸
| Площадь |
163 м2 |
|---|---|
| Этажность |
2 этажа |
| Габариты |
11 x 9 м |
| Количество спален |
3 шт. |
0
Сейчас этот товар просматривают
Артикул:
Проект дома «Прудище»
Категории: 2 этажные, От 150 до 200 м2
Описание
Двухэтажный дом 11 на 9 метров, общей площадью 163 м2, из СИП панелей, с бойлерной и террасой.
Похожие товары
Проект дома «Б-113» 113 кв.м
9,768,000 ₸











