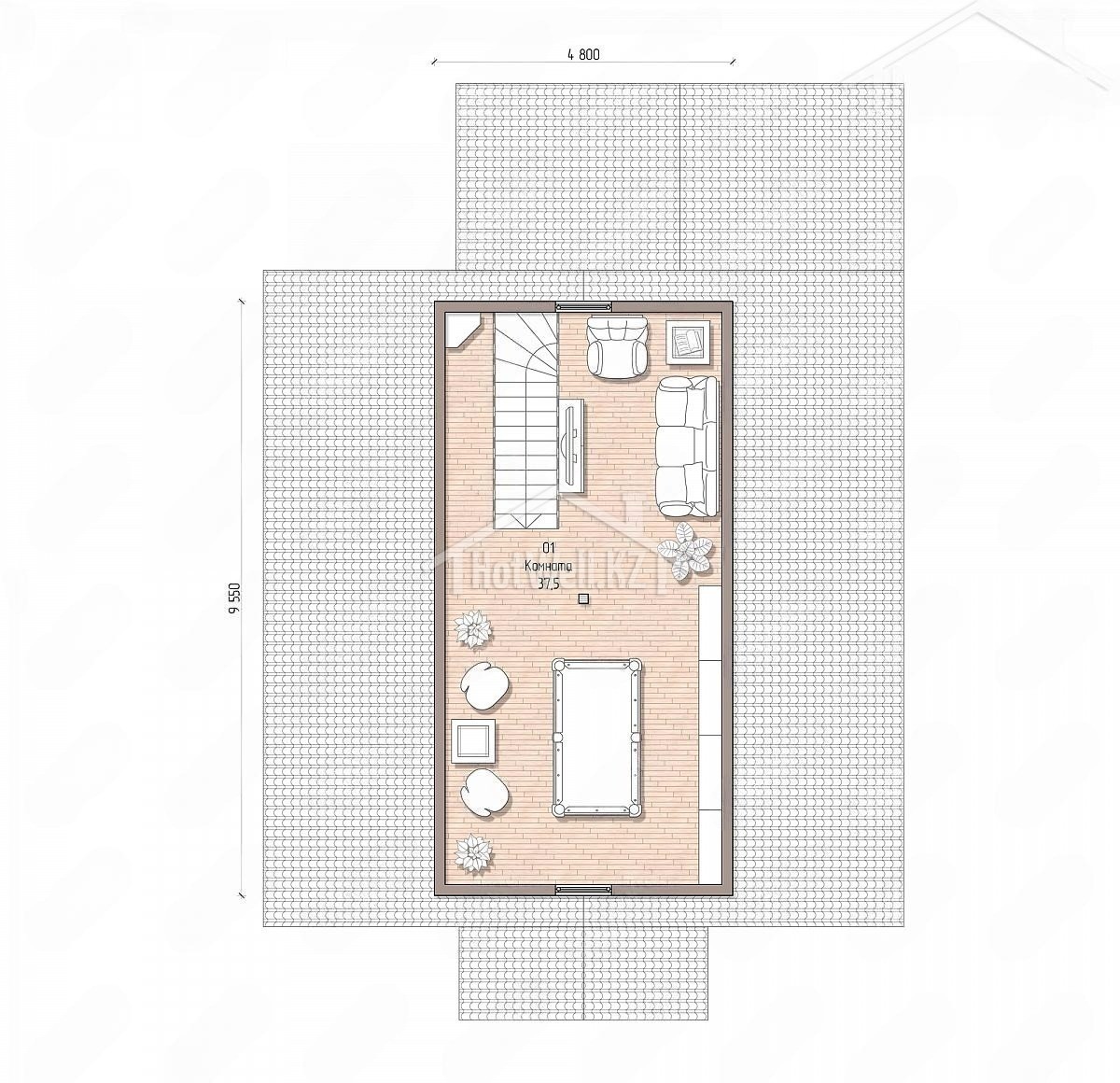
Проект дома «П-158»
12,790,463 ₸
| Площадь |
158 м2 |
|---|---|
| Этажность |
1.5 этажа |
| Габариты |
14 x 9 м |
| Количество спален |
2 шт. |
0
Сейчас этот товар просматривают
Артикул:
Проект дома «Пронское»
Категории: 2 этажные, От 150 до 200 м2
Описание
Дом с мансардой 14 на 9 метров, общей площадью 158 м2, из СИП панелей, с террасой и спальней на первом этаже.
Похожие товары
Проект дома «А-118» 118 кв.м
10,957,197 ₸
Проект дома «Б-205» 205 кв.м
16,308,570 ₸










