Проект дома «П-120» 120 кв.м2
11,553,036 ₸
| Площадь |
120 квм2 |
|---|---|
| 🏗 Этажность: |
2 этажа |
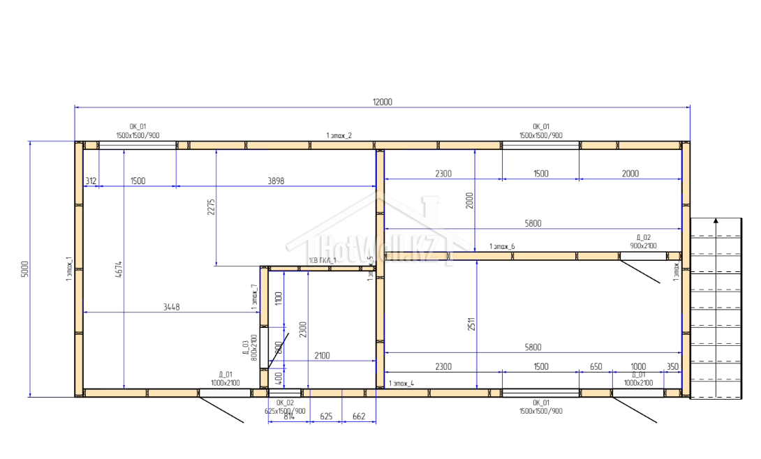
| Габариты |
5х12 |
Проект дома «П-120» 120 м², 2 этажа, четырехскатная крыша
Адаптация под прачечную для гостиницы
«П-120» это двухэтажный объект площадью 120 м² с четырехскатной крышей и высотой стен 3 метра. Проект отличается универсальностью и может использоваться как жилой дом либо как коммерческое помещение, например для размещения прачечной при гостинице.
Высота стен 3 метра на каждом этаже обеспечивает достаточный объем воздуха, удобство монтажа инженерных систем и комфортную эксплуатацию. Четырехскатная крыша повышает устойчивость здания к климатическим нагрузкам и придает архитектуре аккуратный и завершенный вид.
Основные параметры
Общая площадь 120 м²
Этажность 2 этажа
Высота стен 3 метра
Тип кровли четырехскатная
Назначение жилое или коммерческое
Возможности планировки
Первый этаж рационально использовать под производственную часть прачечной. Здесь можно организовать зону приема и сортировки белья, установку профессиональных стиральных и сушильных машин, гладильное оборудование и склад чистого текстиля. Высота потолков позволяет обеспечить правильную вентиляцию и безопасную работу техники.
Второй этаж подходит для размещения административных помещений, комнаты персонала или дополнительных хозяйственных зон в зависимости от задач бизнеса.
Преимущества проекта «П-120»
Оптимальная площадь для малого коммерческого объекта
Высокие потолки 3 метра для размещения оборудования
Надежная конструкция с четырехскатной крышей
Гибкость планировки под разные задачи
Подходит для круглогодичной эксплуатации
Современный и презентабельный внешний вид
Проект «П-120» 120 м² это практичное решение для организации прачечной при гостинице или для комбинированного использования с жилыми и техническими помещениями.











