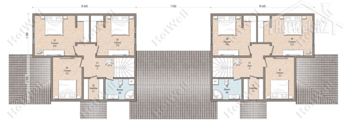
Проект дома «Г-437» 437 кв.м
27,269,793 ₸
Двухэтажный дом с 6 спальнями на 437 м2 с террасой, гаражем, и сложной кровлей. ТаунХаус
| Площадь: |
437 кв.м. |
|---|---|
| Высота этажей: |
2,5 м., 2,5 м. |
| Количество спален: |
6 шт. |
| Этажность: |
2 этажа. |
| Габариты, м: |
33 х 10 |
Ниже то, что входит в стоимость ⇩
КОМПЛЕКТАЦИЯ
Черновая отделка
ГАРАНТИЯ
Гарантия
1 год
ПРОЕКТИРОВАНИЕ
Архитектурный проект
Индивидуальный
Рабочее проектирование
✅
3D-визуализация дома
✅
ФУНДАМЕНТ
Фундамент свайно-ленточный, железобетонный. Наполнение ПГС, поверх стяжка 80 мм.
✅
ОБВЯЗКА ФУНДАМЕНТА
Брус обвязки фундамента
45х140 мм
СТЕНЫ
Внешние + внутренние несущие стены из СИП панелей Hotwell.KZ 158 мм (OSB-3 Толщина 9 мм, Пенополистирол ПСБ-С-20Ф)
✅
Ненесущие перегородки - металлический профиль 50х75 мм, обшитый гипсокартоном. Наполнение минвата.
✅
МЕЖЭТАЖНОЕ ПЕРЕКРЫТИЕ
Межэтажное перекрытие - балочное (45x190 мм), с устройством пола из ОСБ 18 мм
✅
Утепление пенополистиролом 140 мм по периметру межэтажного перекрытия (для двухэтажных домов)
✅
ЧЕРДАЧНОЕ ПЕРЕКРЫТИЕ И КРЫША
Чердачное перекрытие из деревянных балок
✅
Стропильная система крыши
✅
Утепление чердачного перекрытия
Пенополистирол ПСБ-С-20Ф 140 мм
Пароизоляция чердачного перекрытия или крыши
✅
КРОВЛЯ И ОБРЕШЕТКА
Металлочерепица
✅
Утепление чердачного перекрытия или крыши* Пенополистирол ПСБ-С-20Ф) слоем 140 мм
✅
ДОСТАВКА И МОНТАЖ
Монтаж штатными мастерами Хотвелл.кз
✅
Фотоотчеты со стройки
Бесплатно
Сроки сборки**
30 дней
Доставка комплекта дома и всех необходимых материалов
✅
Организация проживания бригады
✅
СТОИМОСТЬ
● *Утепление и пароизоляция стропильной системы крыши производятся в случае наличия мансардного этажа
● **Срок сборки ориентировочный и зависит от погодных условий
● *** Стоимость указана без учёта террас











