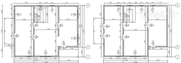
Проект дома «Д-172»
14,808,495 ₸
| Площадь |
172 м2 |
|---|---|
| Этажность |
1.5 этажа |
| Габариты |
11 x 8 м |
| Количество спален |
2 шт. |
0
Сейчас этот товар просматривают
Артикул:
Проект дома «Домодедово 1»
Категории: 2 этажные, От 150 до 200 м2
Описание
Дом с мансардой 11 на 8 метров, общей площадью 172 м2, из СИП панелей, с террасой и балконом.
Похожие товары
Проект дома «А-118» 118 кв.м
10,957,197 ₸
Проект дома «Б-157» 157 кв.м
13,846,568 ₸









