Проект дома «Б-170» 170 кв.м2 Бауржан
13,917,475 ₸
| 🏠 Площадь: |
170 кв.м2 |
|---|---|
| 🏗 Этажность: |
2 этажа |
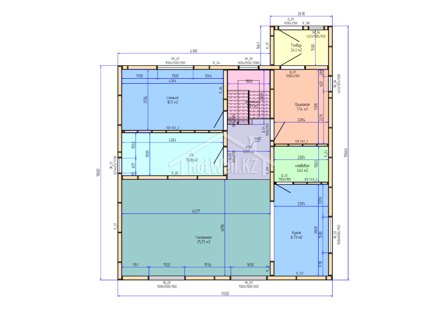
| Габариты |
9х10.6 |
Проект дома «Б-170» — двухэтажный дом 170 м² с двускатной крышей
Проект «Б-170», выполненный для заказчика Бауржана, — это современный двухэтажный дом общей площадью 170 м², рассчитанный на комфортное проживание семьи.
Высота стен на первом этаже — 2,8 метра, что создает ощущение просторных и светлых помещений. Второй этаж отведен под спальни и личные комнаты.
Дом имеет два этажа, что позволяет грамотно организовать внутреннее пространство: на первом уровне разместить общие зоны, а на втором — жилые помещения.
Архитектурной особенностью проекта является двускатная крыша, которая отличается практичностью, надежностью и хорошо защищает дом от осадков.
Проект «Б-170» сочетает удобную планировку, простор и современный внешний вид.











