Проект дома «А-310» — двухэтажный дом 310 м² с четырёхскатной крышей
Проект «А-310», выполненный для заказчика Александра, — это современный двухэтажный дом общей площадью 310 м², который отлично подойдет для просторного и комфортного проживания семьи.
Высота стен первого этажа — 2,8 метра, что создает ощущение более открытого и светлого пространства. На втором этаже высота стен составляет 2,5 метра, благодаря чему помещения остаются уютными и удобными для отдыха.
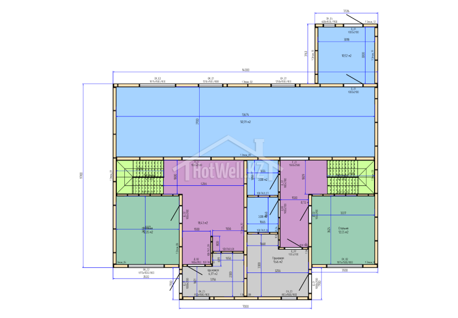
Дом имеет два этажа, что позволяет грамотно организовать внутреннее пространство: на первом уровне разместить общие зоны, а на втором — спальни и личные комнаты.
Архитектурной особенностью проекта является четырёхскатная крыша, которая отличается долговечностью, практичностью и хорошо защищает дом от осадков.
Проект «А-310» сочетает просторную площадь, удобную планировку и современный внешний вид.









